Маркази Парижда жойлашган ташкилот эълон қилган “Ўзбекистонда қийноқ ва судловсиз ўлим жазоси тизими” номли янги ҳисоботда 2008 йилнинг 1 январидан бошлаб ўлим жазоси бекор қилинган Ўзбекистонда судловсиз ўлим жазосини ижро этиш ҳамда қийноқларни систематик тарзда қўлланилаётгани ҳақида гап боради.
Судловсиз қатл қилиш ҳақидаги таъкидлар Ўзбекистон ҳукуматига нисбатан жуда жиддий айблов ва ташкилот раҳбари Надежда Отаева айнан шунинг учун бу маълумотларни синчиклаб ўрганилганини алоҳида таъкидлади.
- Биз ҳозир бир неча ҳисобот устида ишлаяпмиз ва бу уларнинг биринчисидир. Аслида, Ўзбекистонда сўнгги 6 йил ичида фаолларимиз ўтказган тадқиқотлар давомида ва, айниқса, расман ўлим жазоси бекор қилинганидан кейинги муддат ичида судловсиз ўлим жазосини ижро этиш ҳоллари кўпайгани кузатилаётган эди. Кейин эса биз Андижон воқеаларидан кейин вилоят шифохонаси ўликхонасида ишлаган собиқ ходимнинг кўрсатмасини қўлга киритдик,- дейди Надежда Отаева.
Ҳуқуқ фаолига кўра, хавфсизлик нуқтаи-назаридан исми ошкор қилинмаётган бу патологоанатом 2005 йилнинг 23 сентябридан 2006 йилнинг февралига қадар Андижон вилояти марказий шифохонасининг МХХ томонидан мутлақ назоратга олинган ўликхонасида ишлаган ва шу муддат давомида унинг шахсан ўзи ўқотар қуролдан отиб ўлдирилган 300 кишининг жасадини кўздан кечирган.
Ҳисоботда унинг бу борадаги кўрсатмасидан иқтибос келитирилган:
“Мен нисбатан яхшироқ эсимда қолган баъзи ҳолатларни санаб ўтишим мумкин. Булар биринчи навбатда болалардир. Булар орасида бўғзидан ва қорнидан отилган 10 ёшли бола бор эди. Унинг танасида ҳали ҳаётлигида тушган калтак излари ҳам бор эди. Шунингдек, танасида ҳаётлигида тушган, аммо ўлар ҳолатда бўлмаган калтак излари бўлган яна бир 6 ёшли бола жасадининг миясига кирган ўқни чиқариб олган эдим.”
Унга кўра, ўқ отар қуролдан отиб ўлдирилган марҳумлар орасида ҳаётлигида қийноққа солинган ҳомиладор аёллар ҳам бўлган. Танасида қийноқ излари кўринмаган, аммо, ички аъзолари калтаклардан эзиб, қориштириб ташланган маҳбуслар ҳам бўлган.
Шунингдек, Андижон вилояти шифохонаси ўликхонасига келтирилган марҳумлар орасида йўғон ичагидан қайноқ сув қуйлиши натижасида ҳали ҳаётлигида ошқозони ёрилиб, бир неча кун давомида ички аъзолари чириб кетганидан ўта қийналиб ўлгани яққол кўриниб турган эркаклар ҳам бўлган.
Бу шифокор билан суҳбатлашган ташкилот раҳбари Надежда Отаевага кўра, бу патологоанатом кўздан кечирган ўликларнинг бирортасида шахсига оид маълумотлар, шунингдек, уларни қидириб келган яқинлари ҳам бўлмаган.
- Ўликхонага, одатда, икки тоифа жасад – бири касалликдан вафот этган ва яна бири ўлик ҳолда топилган жасадлар келтирилади. Аммо, бу ерга учинчи тоифа – яшил рангдаги бланка билан расмийлаштирилган ва шахсига оид маълумотлар ўрнига 7 та рақам билан рақамланган ўликлар ҳам келтирилган,- дейди Надежда Отаева андижонлик патологоанатом сўзларига таяниб.
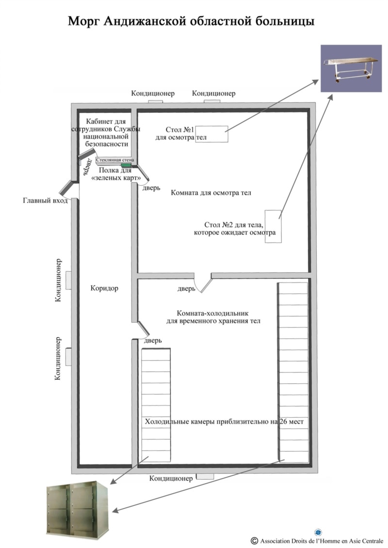
Андижон ўликхонасида ишлаганини айтаётган патологоанатомнинг сўзларига кўра чизилган ўликхона схемаси.
Андижон вилояти шифохонаси ўликхонасининг собиқ ходимига кўра, 2005 йил сентябридан 2006 йил февралига қадар яшил карточка билан ўликхонага келган 300 жасадни ўликхонага олиб келиш, текшириш, текширувни ҳужжатлаштириш ҳамда уларнинг олиб кетилиши тўлиқ миллий хавфсизлик хизмати ходимларининг қаттиқ назорати остида амалга оширилган.Ўликхонага ном-нишонсиз келган бундай жасадлар худди шундай ном-нишонсиз тарзда тиббий текширув натижаларига қўшилиб шифокорларга номаълум манзилга олиб кетилган.
Ўликхона собиқ ходимининг Марказий Осиёда инсон ҳуқуқлари ташкилотига берган кўрсатмаси мазмунидан яшил карточка билан келтирилган марҳумлар, шубҳасиз, тириклигида ўлимга маҳкум этилган инсонлар бўлган.
“Менинг навбатчилигимда бир гал тириклигида қийналган ва расвоси чиқариб юборилган эркакнинг жасадини келтиришди. Ёрдамчиларим билан унинг танасини ёра бошлаган пайтимизда у бирдан нафас ола бошлади ва юрак уриши пайдо бўлиб, кўзларини очди. Менинг тажрибамда бунақаси биринчи марта бўлиши эди. Югуриб ўликхона мудири ёнига бордик. Ўша заҳоти МХХ ходими пайдо бўлди ва нима бўлганини билгандан кейин бизни хонада қолдириб, ўзи чиқиб кетди. Бир неча дақиқадан сўнг эса келиб, ишни давом эттиришимизни айтди. Операция хонасига қайтганимизда бу одам танасида унинг ўлимига сабаб бўлган янги тан жароҳатларини кўрдик”, деган иқтибос келтирилади ҳисоботда Андижон вилояти шифохонасидаги ўликхонанинг собиқ ходими экани айтилаётган шахс ҳикоясидан.
Анджинлик патологоанатом сўзларига кўра, қатл қилинганлар ҳақидаги маълумотлар ана шу кўринишдаги яшил формаларга киритилган.
Марказий Осиёда инсон ҳуқуқлари ташкилотининг Ўзбекистонда судловсиз ўлим жазосини ижро этиш тизими мавжудлиги таъкидланган янги ҳисоботида асли андижлонлик патологоанатом тилидан ҳикоя қилинган аянчли ҳикоялар талайгина.Дарвоқе, бунга қадар айни шифокор ўз шахсига оид маълумотлар сир сақланган ҳолда Al-Jazeera телеканалига берган интервьюсида қамоқхонада қийноқдан ўлган маҳбусларнинг танасини тиббий текширувдан ўтказгани ҳақида кўрсатма берган эди.
Табиийки, бундай кўрсатмалар Ўзбекистонда инсон ҳуқуқлари ва айнан қийноқлар билан боғлиқ вазиятни кузатиб келаётган халқаро ташкилотлар, айни пайтда, ахборот воситалари эътиборини тортмоқда.
Айни пайтда, шахсига оид маълумотлар мутлақ сир тутилаётган бу патологоанатомнинг кўрсатмалари шубҳа остига ҳам олинмоқда.
Бундай шубҳаларни ўқувчилари муҳокамасига тақдим қилган Fergana.ru сайти бунинг сабабини Ўзбекистонда систематик равишда судловсиз ўлим жазосининг ижро этилиши ҳақидаги айбловнинг ўта жиддий экани билан изоҳлаган.
Шу боис бу сайт унинг журналистига маҳфий равишда интервю берган андижонлик икки патологоанатомнинг муносабатини келтирган.
Уларнинг бирида, жумладан, бундай дейилади:
“Бу одам жасадни ёриш тартибидан хабадор эмас. Биринчидан, анал тешиклари ёрилмайди, балки ташқи томонидан текширилади. Иккинчидан, у танани ёриш тартибини нотўғри таърифлаяпти, кўриниб турибдики, у бундай иш билан шуғулланмаган. Бизда тананини ёришнинг икки услуби – Абрикосов ва Шор услуби бор... Ҳам одатий патологоанатомия бўлими, ҳам суд экспертизаси бўлимида шу икки услубдан бири қўлланилади. Фақатгина судтиббийэкспертиза бўлимида бу мураккаброқ бўлиши мумкин, бу кўпроқ жароҳат характерига боғлиқ”, дейди андижонлик патологоанатомлардан бири Fergana.ru сайтига берган интервьюсида.
Марказий Осиёда инсон ҳуқуқлари ташкилоти раҳбари Надежда Отаева эса бу каби эътирозлар ва шубҳалар билдирилишини ҳам кутгани ҳамда буни олқишлашини айтади.
- Ҳамма бизга аслида қандай бўлиши кераклиги ҳақида ақл ўргатишни бошламоқда. Аслида қандай бўлиши кераклиги маълум, аммо, биз амалиётда қандай экани ҳақида гапираяпмиз. Шахсан мен учун бу борадаги энг нуфузли хулоса БМТнинг Қийноқлар бўйича махсус маърузачисининг ўша ўликхонани кўздан кечириб, айтган хулосаси бўларди. Токи бунинг имкони бўлмагунига қадар биз мана шундай кўрсатмалар билан ишлашга мажбурмиз.
Бироқ, мен билдирилаётган фикрларни ҳурмат қиламан. Фикр қанчалик кўп бўлса, шунча яхши. Биз шубҳа уйғотган бўлсак-да, бу муаммони кўтардик. Эндиликда ўзининг ёпиқ режимга асосланган сиёсати билан шу каби ҳисоботларга сабаб бўлаётган Ўзбекистон ҳукумати ошкоралик ва инсон ҳуқуқлари бир-бири билан узвий боғлиқ тушунча эканини тушунсин ва энг муҳими, мен инсон ҳуқуқлари бузилишидан жабрланганлар овозини бутун дунё эшитишини истайман!- дейди “Ўзбекистонда қийноқ ва судловсиз ўлим жазоси тизими” номли ҳисоботи билан шов-шувларга сабаб бўлаётган Марказий Осиёда инсон ҳуқуқлари ташкилотининг раҳбари Надежда Отаева.
Матбуот қизиқишини уйғотаётган андижонлик шифокор эса, ҳуқуқ фаолига кўра, тез орада Европа давлатларидан бирида режалаштирилаётган тадбирда шахсан иштирок этиб, жамоатчиликка ўзини таништиради.

